Espace propriétaire
fr

Votre recherche

Vendu
Trappes (78190)

5 pièces - 93 m²

En hyper centre de Trappes, appartement F5 de 93m² + double parking.

Ref : 3087
Découvrir le bien

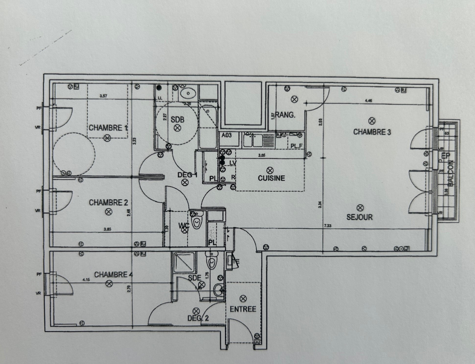
Au dernier étage d'une copropriété de 2013 (DPE : B), cet appartement fonctionnel et très bien distribué vous séduira par sa luminosité et ses volumes.
Il se compose d'une entrée avec placards, d'une suite parentale (chambre, salle de douche et wc), d'un grand séjour de 40m², de 2 autres chambres et une salle de bain avec baignoire. Plusieurs espaces de rangements ont été agilement créé. Vous bénéficierez également de 2 places de stationnements en sous-sol.
Au pied de l'immeuble se trouve un arrêt de bus, des commerces, écoles, pharmacie, cinéma et la gare à 2min.
Les charges sont de 290€ / mois et comprennent l'entretien des parties communes, sortie des poubelles, l'eau et le chauffage.

TRAD_ZEPHYR_Caracteristique TRAD_ZEPHYR_Valeurs
Code postal 78190
Surface loi Carrez (m²) 93,39 m²
Nombre de chambre(s) 3
Nombre de pièces 5
Etage 3
Ascenseur OUI
TRAD_ZEPHYR_Caracteristique TRAD_ZEPHYR_Valeurs
Nb de salle de bains 1
Nb de salle d'eau 1
Cuisine Américaine
Type de cuisine Equipée
Mode de chauffage Gaz
Type de chauffage Autre
Format de chauffage Collectif
Balcon OUI
Terrasse NON
Cave NON
Exposition Sud-Est
Année de construction 2013
Quartier centre ville, Centre ville - Gare, centre-ville, GARE DE TRAPPES
TRAD_ZEPHYR_Caracteristique TRAD_ZEPHYR_Valeurs
Copropriété OUI
Quote Part annuelle des charges 200 €
plan de sauvegarde NON
TRAD_ZEPHYR_Caracteristique TRAD_ZEPHYR_Valeurs
Les honoraires d'agence seront intégralement à la charge du vendeur  
Charges 200 €
Taxe foncière annuelle 1 965 €
DPE GES
Contacter pour ce bien
L'agence
Téléphone 01 34 61 20 00
Adresse
6 rue Jean Jaurès 78190 Trappes

* Champ obligatoire

Les informations recueillies sur ce formulaire sont enregistrées dans un fichier informatisé par La Boite Immo agissant comme Sous-traitant du traitement pour la gestion de la clientèle/prospects de l'Agence / du Réseau qui reste Responsable du Traitement de vos Données personnelles. La base légale du traitement repose sur l'intérêt légitime de l'Agence / du Réseau. Elles sont conservées jusqu'à demande de suppression et sont destinées à l'Agence / au Réseau. Conformément à la loi « informatique et libertés », vous disposez des droits d’accès, de rectification, d’effacement, d’opposition, de limitation et de portabilité de vos données. Vous pouvez retirer votre consentement à tout moment en contactant directement l’Agence / Le Réseau. Consultez le site https://cnil.fr/fr pour plus d’informations sur vos droits. Si vous estimez, après avoir contacté l'Agence / le Réseau, que vos droits « Informatique et Libertés » ne sont pas respectés, vous pouvez adresser une réclamation à la CNIL. Nous vous informons de l’existence de la liste d'opposition au démarchage téléphonique « Bloctel », sur laquelle vous pouvez vous inscrire ici : https://www.bloctel.gouv.fr Dans le cadre de la protection des Données personnelles, nous vous invitons à ne pas inscrire de Données sensibles dans le champ de saisie libre.
Ce site est protégé par reCAPTCHA, les Politiques de Confidentialité et les Conditions d'Utilisation de Google s'appliquent.

Découvrir nos outils